34 Western Pavillion
Situated in North-West Pune, Baner is residential & commercial placed alongside the Mumbai Highway.It is surrounded by Balewadi, Aundh, Pashan, Sus and Mhalunge. Residential deand driven by working professional employed in the software companies located in Baner itself and other close by employment hubs such as Rajiv Gandhi infotech park in Hinjewadi. Most of the residential developments in Baner are in the form of multi-storey apartment projects.
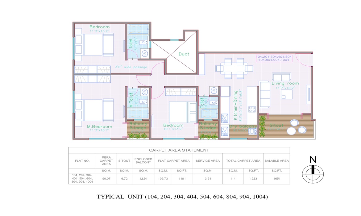
Project Address
34 Western Pavillion Site Address:- Sr.No.34/2, Near Rohan Seher, Pancard Club Road, Baner, Pune - 411045
34 Western Pavillion A Wing
Amenities & Specifications
- Attractive Glass elevation facade.
- Power Backup for Lifts, & selected common area
- Rain Water Harvesting
- Photovoltaic solar system for power generation for common areas
- Ample parking space with covered car parks and 2 wheeler parks
- Ample UGWT and OHWT
- Individual letter Box, Notice Board
- Tree Plantation
- Security Cabin
- CCTV System
- Fire Fighting System
- Earthquake resistance RCC structure
- Internal plaster with gypsum coated
- Shutters for shops
- Laminate flush doors for Offices/Studios
- Vetrified double charged tiles
- CP/Sanitary Fitting of Jaquar/Kohler or Similar
- Plumbing work with Astral or similar make
- Concealed copper wiring Polycab
- Provision for TV and Internet Point
- AC Point
34 Western Pavillion B Wing
Amenities & Specifications
- Attractive Entrance Gate.
- Power Back up for Lifts, water pumps & Selected Common area with sufficient capacity DG set.
- Elevators With power back up-OTIS/ KONE /Similar Make
- Rain water harvesting
- Provision for TV Service provider connection (D2H/Airtel/ Tata Sky)
- P.V. solar system for power Generation for common areas
- Ample parking space covered Car parks
- Ample UGWT & OHWT for utility water along with the adequate provision For Drinking water
- Well-designed compound wall
- Individual Letter box, Name plates, Notice Board
- Tree Plantation
- Floor Amenity includes GYM, Yoga, Meditation, Children play Area, Table-Tennis, Indoor Games for Children.
- Terrace Sit out.
SECURITY FEATURES
- Security cabin
- CCTV System
- Fire Fighting system
- Rain water harvesting
- Video door Phone
- WATER SUPPLY
- Digital Locks
STAIRCASE & LIFTS
- Staircase with Kota /Granite steps & ceramic flooring for Landing
- Granite/cladding wall tiles at lift entrance of each floor
- Railing
- Rain water harvesting
PARKING AREA
- Trimix with adequate lights
STRUCTURE
- External walls of 6" thick Eco-friendly AAC Blocks
- Internal walls of 6" 5" & 4" thick Eco-friendly AAC Blocks
- Earthquake resistance RCC structure
- Internal plaster with Gypsum coated
- External sand faced plaster
- Ceiling of POP finish
DOORS
- Main door laminate flush doors with Adequate fittings
- Bedroom laminate flush doors with Adequate fittings
KITCHEN
- Black Granite kitchen platform with S. S. Sink
- Dado tiles up to slab level above platform
- Dado tiles below kitchen platform
- Dado tiles for kitchen dry balcony
- Provision for water purifier
FLOORING
- Vitrified double charged floor tile
- Antiskid flooring for Bathroom, Balcony & Terraces
WINDOWS / BALCONIES
- Marble sill for windows
- 3 Track powder coated Aluminium sliding windows
- M. S. safety grills
- Bathroom windows will be louvered
- Glass railing for Balconies
BATHROOM / WC
- Provision for water heater & Exhaust fan
- CP & Sanitary fittings of Cera/Jaguar/Parryware/Kohler or similar
- Digital wall tile dado up to beam level (7 Ft.)
- Concealed plumbing work with premium piping (Astral or similar make)
ELECTRICAL
- Le-Grand or Equivalent switches
- Concealed copper wiring
- TV & Internet point
- AC point in Bedrooms & Living room
PAINTING
- Luster paint for internal walls
- External Acrylic point - Apex or similar
- Oil Paint for Grills & Railings

